Описание
Характеристики
Отзывы
Описание
| Производительность | |
| м3/час: | 2 - 4 |
| л/с: | до 1,2 |
|
Загрузка |
|
| Механическая, Vмех, м3: | Лавсан, 0.04 |
| Сорбционная, Vсорб, м3: | Уголь активированный, 0.10 |
| Механическая, Лавсан, кг: | 1,5 |
| Механическая, Синтепон, пог.м: | С-200 (ширина 1,5 м), 3 |
|
Технические характеристики |
|
| Материал корпуса: | ПНД |
| Вес с загрузкой, кг: | 34 |
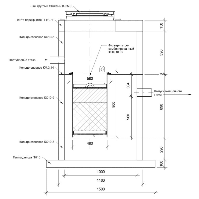
| Диаметр по фланцу, D, мм: | 580 |
| Диаметр корпуса, d, мм: | 480 |
| Высота, H, мм: | 900 |
| Высота, H max, мм: | 990 |
|
Место установки |
|
| Колодец дождеприемный, Dк, мм: | 1000 |
На рисунках описаны способы монтажа в дождеприемный колодец (ДК) и в смотровой (промежуточный) колодец.
Для монтажа в ДК вам понадобится опорное кольцо ОК-0.58-0.9-ЛК (перейдите по ссылке)
Для монтажа в КК вам понадобится опорное кольцо ОК-0,58-1,0 (перейдите по ссылке)
По габаритам и техническим характеристикам соответствует ФОПС®-МУ-0,58-0,9 и ФПК-580-900-Полихим (замена не требует согласований)
Характеристики
Диаметр колодца
1000 мм
Тип очистки
комбинированный
Отзывы
Отзывов еще никто не оставлял
Сопутствующие товары
